OMEGA 63 lighting channel system

Many design options with the LINIE range of lighting

There are many design options with OMEGA 63. This slim design line comprises a symmetrically radiant aluminium lighting channel system with LED technology. Alternatively, OMEGA 63 can also be designed asymmetrically as a wall washer to allow the walls to be lighted evenly. The lighting channel is based on a stable basic profile with lengths of up to 6 m.

  • System can be combined with rectangular metal panels from durlum.
  • System complemented by suspension and connector systems
  • Integration is possible in polygonal ceiling shapes.
  • Endless traverse possible in gypsum.

Technical Information

Lighting channel

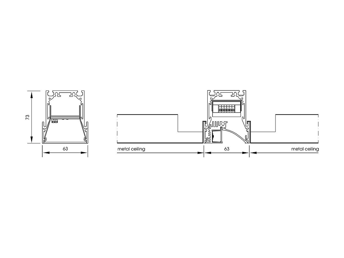
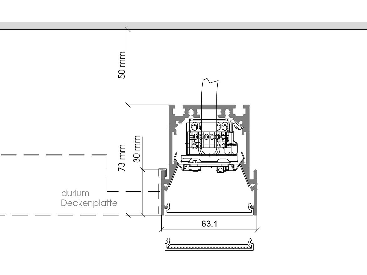
W: 63 mm
H: 73 mm
Surface: anodised aluminium, powder-coated on request

Covers

PMMA opal or microprismatic for UGR< 19 applications
                
Luminaire detail

Light colour: 3000 K, 4000 K, CRI > 80
Luminaire output:  4454 lm/m (3000 K), 4654 lm/m (4000 K)    
Dimmability: DALI dimmable
Driver: integrated
Power supply: 230 V/50 Hz
Protection degree: IP 20
Protection class: I

Lighting channel

W: 63 mm
H: 73 mm
Surface: anodised aluminium, powder-coated on request
 

Luminaire details

Light colour: 3000 K, 4000 K, CRI > 80
Luminaire output: 2190 lm/m (3000 K), 2500 lm/m (4000 K)    
Dimmability: DALI dimmable
Driver: integrated
Power supply: 230 V/50 Hz
Protection degree: IP 20
Protection class: I