S5.1 RHOMBOS Streckmetalldecke

Kreuzbandrastersystem

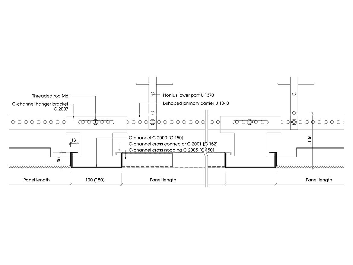
S5.1 RHOMBOS ist ein Kreuzbandrastersystem. Das System mit längs- und querlaufenden Profilen eignet sich besonders für den Einsatz in Bürogebäuden, da sich die Raumaufteilung einfach ändern lässt. Dabei werden die Trennwände nach Bedarf an den Bandrasterprofilen befestigt. Das System ist einfach und werkzeuglos zu demontieren.

  • Sichtbare Unterkonstruktion
  • Je nach Blickrichtung offenes oder geschlossenes Deckenbild

Technische Information

Abmessungen

Länge: ≤ 3000mm
Breite:  ≤1100mm
Empfohlene Fläche: ≤ 3m²
Standardmäßig mit aufgeschweißtem Rahmen, andere Ausführungen möglich.
 

Material und Oberfläche

Stahl verzinkt, Aluminium auf Anfrage: Silbermetallic (ähnlich RAL 9006), Weiß (RAL 9016 matt DUROPLAN Typ 1), Chrombrillant mit Klarlack. Andere Pulverbeschichtungen auf Wunsch.
 

Akustik und Maschen

Schallabsorption: standardmäßig über schwarzes Akustikvlies (αw= 0,45; NRC=  0,40) Standardmaschengrößen: M110, M260, M400. Andere Maschengrößen möglich.
 

Brandverhalten

Standard: A2-s1.dO nach EN13501-01 (nicht brennbar)