STAR LINEARRASTER

Offene Metalldecke mit klar definierten Kanten

Die offene Rasterdecke STAR setzt Akzente in jeder Architektur. Die Rasterdecke kann horizontal oder vertikal verlegt werden. Die Kombination der Lamellen und die klar definierten Kanten erzeugt ein einzigartiges Erscheinungsbild. Werden die Lamellen verschiedenfarbig lackiert, entstehen in Verbindung mit den zurückversetzten schwarzen Traversen vollkommen neue Deckendesigns. 

  • Ästhetische Integration von punktförmigen Leuchten möglich
  • Einzelne Felder sind vormontiert
  • Felder sind optional abklappbar

Technische Information

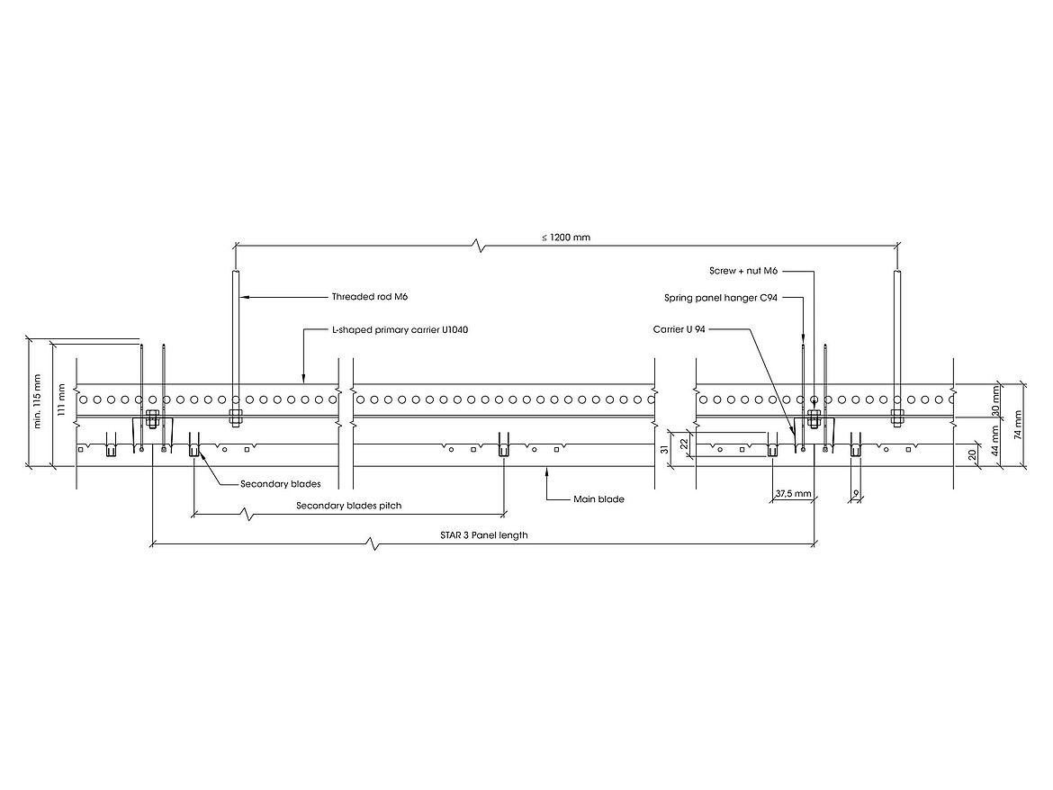
Abmessungen:

Felder:

1200 x 600mm
1250 x 625mm  | max. 1320mm (nur STAR  3)

Lamellenabmessungen:

STAR  3:
Breite x Höhe: 3 x 20 mm
Abstand: 15-40mm

STAR  9:
Breite x Höhe: 9 x 17,3mm
Abstand: ≥25 mm

STAR  15:
Breite x Höhe: 15 x 14,3 mm
Abstand: ≥30 mm

Traversenabmessungen:

Breite x Höhe: 9 x 22mm
Abstand: 375mm

Verlegung:

Horizontal: U 94
Vertikal: U 94, direkte Wandmontage, U-Profil

Material und Oberfläche:

Aluminium. Oberfläche bandlackiert
Lamellen: weiß, schwarz, RAL 9006; andere Farben auf Wunsch
Traversen: schwarz (weiß zusätzlich bei STAR 9 und STAR 15 möglich)

Akustik:

Schallabsorption: In Verbindung mit Breitbandabsorber dur-SONIC® TUBEw=  0,80; NRC=  0,75)