S5 LINEARES C-BANDRASTER

Langfeldplatte mit linearer Anmutung

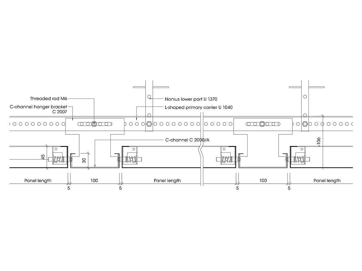
Das linear verlaufende Bandrastersystem S5 verfügt über eine sichtbare, parallel laufende Unterkonstruktion. Diese sichtbare Unterkonstruktion erlaubt auch eine flexible Raumaufteilung. Dabei werden verschiebbare Trennwände nach Bedarf an den parallel verlaufenden Bandrasterprofilen befestigt. Optional ist dieses System auch abklapp- und verschiebbar erhältlich. 

  • Teilweise mit Kühlmäandern als Kühldecke ausführbar
  • Einfach und werkzeuglos zu demontieren
  • Teilweise für druckfeste Deckenanwendungen geeignet

Technische Information

Abmessungen:

Länge:

5-100/150 und 5.4 K-BR: ≤3500mm
5.6 FH und 5.7 KS-BR: ≤2000mm

Breite: ≤1300mm

Empfohlene Fläche:

5-100/150: ≤3m²
S5.4 K-BR: ≤2,5m²
5.6 FH und 5.7 KS-BR: ≤2m²

Material und Oberfläche:

Verzinktes Stahlblech, Aluminium: Standardpulverbeschichtung weiß (RAL 9016 matt DUROPLAN Typ 1). Schichtdicke: 60µm. Andere Pulverbeschichtungen auf Wunsch.

Aluminium: bandeloxiert oder spiegelglänzend

Edelstahl: gebürstet oder spiegelglänzend

Akustik und Perforation:

Standardperforation: RG-L15. Weitere Perforationen möglich
Schallabsorption: standardmäßig über schwarzes Akustikvlies (αw= 0,70; NRC= 0,70)

Bedruckung:

Pulverbeschichtete Zuschnitte zusätzlich mit Motiven und Texturen bedruckbar

Brandverhalten:

Standard, glatt oder perforiert: A2-s1.dO nach EN13501-01 (nicht brennbar)