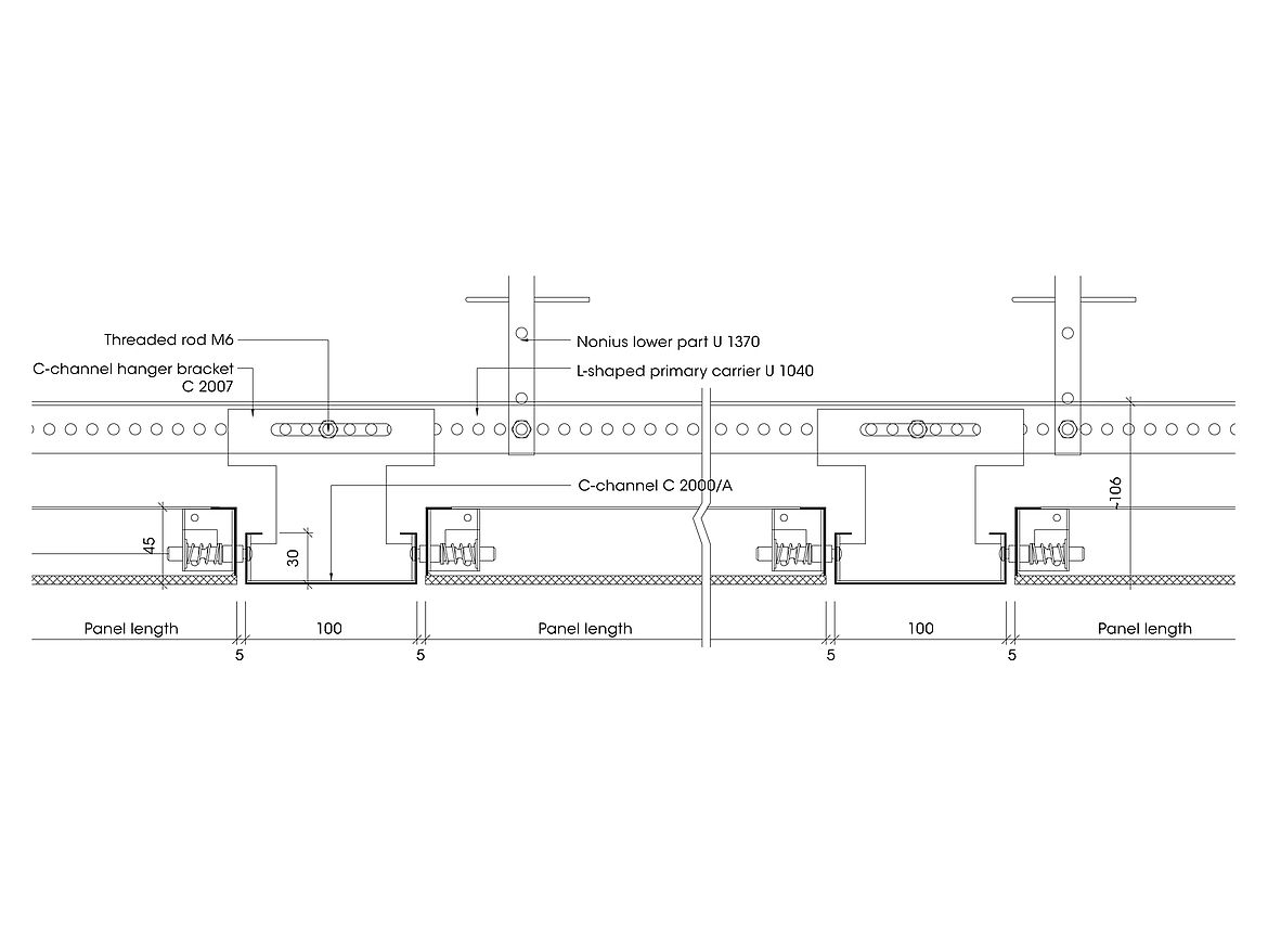
S5 RHOMBOS ist eine Streckmetalldecke mit linearem Bandrastersystem. Die Unterkonstruktion ist parallel verlaufend und sichtbar. Das System eignet sich besonders für Bürogebäude, da sich die Raumaufteilung einfach ändern lässt. Dazu werden die Trennwände nach Bedarf an den Bandrasterprofilen befestigt. Optional ist dieses System auch abklapp- und verschiebbar erhältlich.
S5 RHOMBOS Lineares Bandrastersystem
Abmessungen
Länge: ≤ 3000mm
Breite: ≤1100mm
Empfohlene Fläche: ≤ 3m²
Standardmäßig mit aufgeschweißtem Rahmen, andere Ausführungen möglich.
Material und Oberfläche
Stahl verzinkt, Aluminium auf Anfrage: Silbermetallic (ähnlich RAL 9006), Weiß (RAL 9016 matt DUROPLAN Typ 1), Chrombrillant mit Klarlack. Andere Pulverbeschichtungen auf Wunsch.
Akustik und Maschen
Schallabsorption: standardmäßig über schwarzes Akustikvlies (αw=0,45; NRC=0,40)
Standardmaschengrößen: M110, M260, M400. Andere Maschengrößen möglich.
Brandverhalten Standard: A2-s1.dO nach EN13501-01 (nicht brennbar)
S5.4 K-BR RHOMBOS Lineares Bandrastersystem, abklappbar mit Bolzen/Riegel
Abmessungen
Länge: ≤ 3000mm
Breite: ≤1100mm
Empfohlene Fläche: ≤ 3m²
Standardmäßig mit aufgeschweißtem Rahmen, andere Ausführungen möglich.
Material und Oberfläche
Stahl verzinkt, Aluminium auf Anfrage: Silbermetallic (ähnlich RAL 9006), Weiß (RAL 9016 matt DUROPLAN Typ 1), Chrombrillant mit Klarlack. Andere Pulverbeschichtungen auf Wunsch.
Akustik und Maschen
Schallabsorption: standardmäßig über schwarzes Akustikvlies (αw=0,45; NRC=0,40)
Standardmaschengrößen: M110, M260, M400. Andere Maschengrößen möglich.
Brandverhalten Standard: A2-s1.dO nach EN13501-01 (nicht brennbar)
S5.6 FH RHOMBOS Lineares Bandrastersystem mit Flanschhaken
Abmessungen
Länge: ≤ 2000mm
Breite: ≤1100mm
Empfohlene Fläche: ≤ 2m²
Standardmäßig mit aufgeschweißtem Rahmen, andere Ausführungen möglich.
Material und Oberfläche
Stahl verzinkt, Aluminium auf Anfrage: Silbermetallic (ähnlich RAL 9006), Weiß (RAL 9016 matt DUROPLAN Typ 1), Chrombrillant mit Klarlack. Andere Pulverbeschichtungen auf Wunsch.
Akustik und Maschen
Schallabsorption: standardmäßig über schwarzes Akustikvlies (αw=0,45; NRC=0,40)
Standardmaschengrößen: M110, M260, M400. Andere Maschengrößen möglich.
Brandverhalten Standard: A2-s1.dO nach EN13501-01 (nicht brennbar)
S5.7 KS-BR RHOMBOS Lineares Bandrastersystem, abklapp- und verschiebbar
Abmessungen
Länge: ≤ 2000mm
Breite: ≤1100mm
Empfohlene Fläche: ≤ 2m²
Standardmäßig mit aufgeschweißtem Rahmen, andere Ausführungen möglich.
Material und Oberfläche
Stahl verzinkt, Aluminium auf Anfrage: Silbermetallic (ähnlich RAL 9006), Weiß (RAL 9016 matt DUROPLAN Typ 1), Chrombrillant mit Klarlack. Andere Pulverbeschichtungen auf Wunsch.
Akustik und Maschen
Schallabsorption: standardmäßig über schwarzes Akustikvlies (αw=0,45; NRC=0,40)
Standardmaschengrößen: M110, M260, M400. Andere Maschengrößen möglich.
Brandverhalten Standard: A2-s1.dO nach EN13501-01 (nicht brennbar)